Team: Group project with 4 students
My role: 3D visualizations and renderings, some technical detail drawings, collaborative work on lighting design and space planning
My role: 3D visualizations and renderings, some technical detail drawings, collaborative work on lighting design and space planning
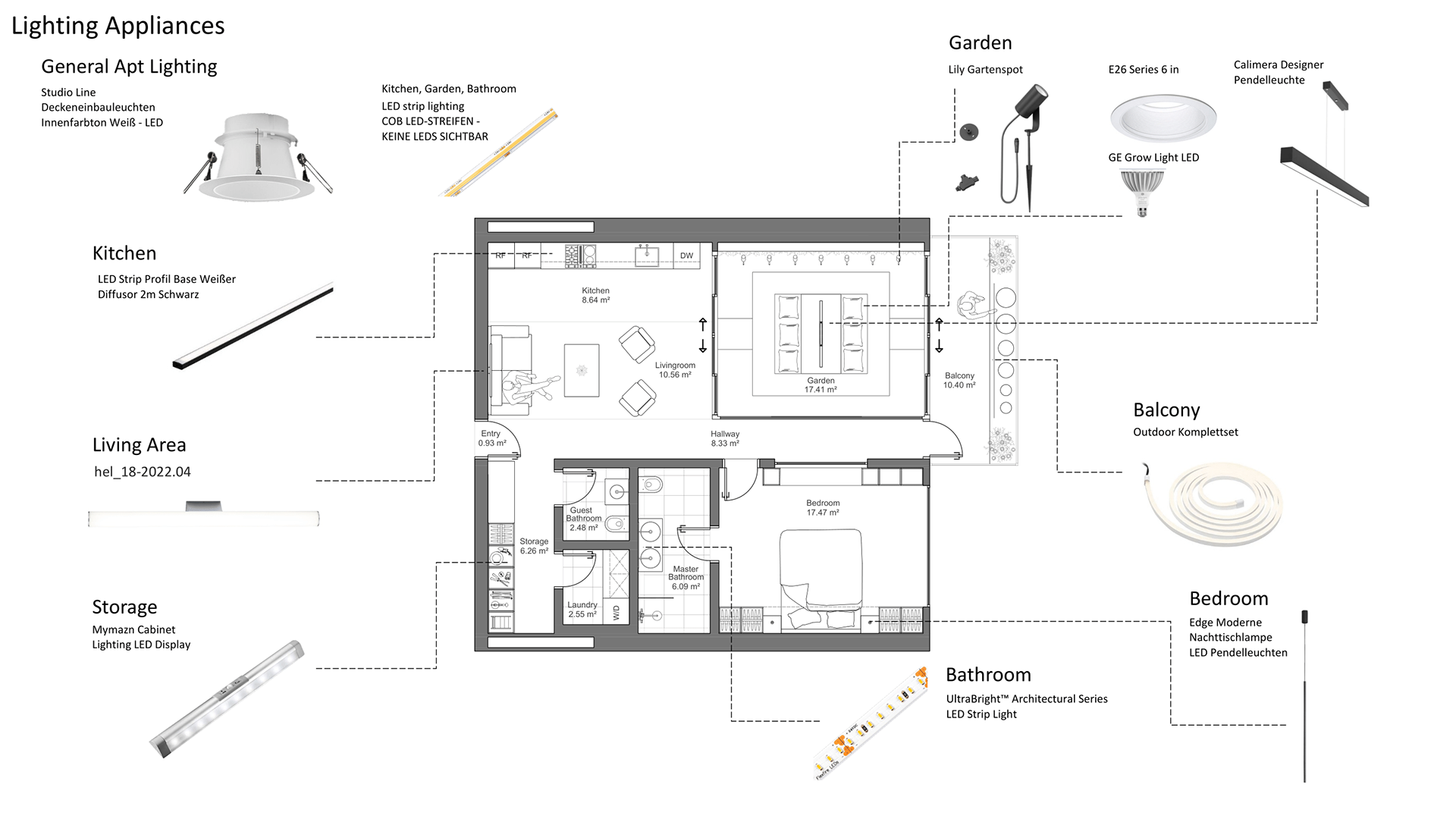
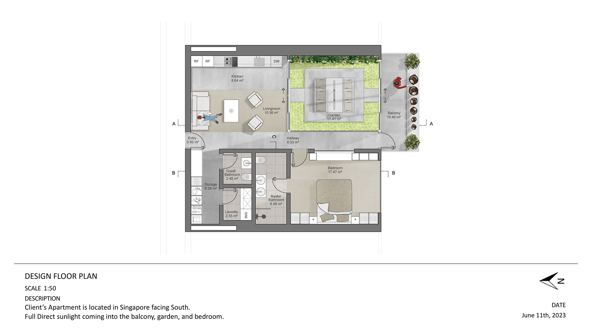
This residential project in Singapore explores how lighting can shape the experience of an urban apartment with a large indoor garden. The apartment faces south, bringing direct sunlight into the balcony, garden, and bedroom. We designed a comprehensive lighting and building services plan that balances natural light with layered artificial lighting to create distinct atmospheres in each zone.
The lighting uses three layers: recessed spotlights for general illumination, indirect lighting along walls and in key areas for warmth and depth, and LED strips under cabinets for task lighting. We added pendant lights above dining and living areas, grow lights for the indoor garden, and outdoor lighting for the balcony. Each space has its own mood while staying visually connected.
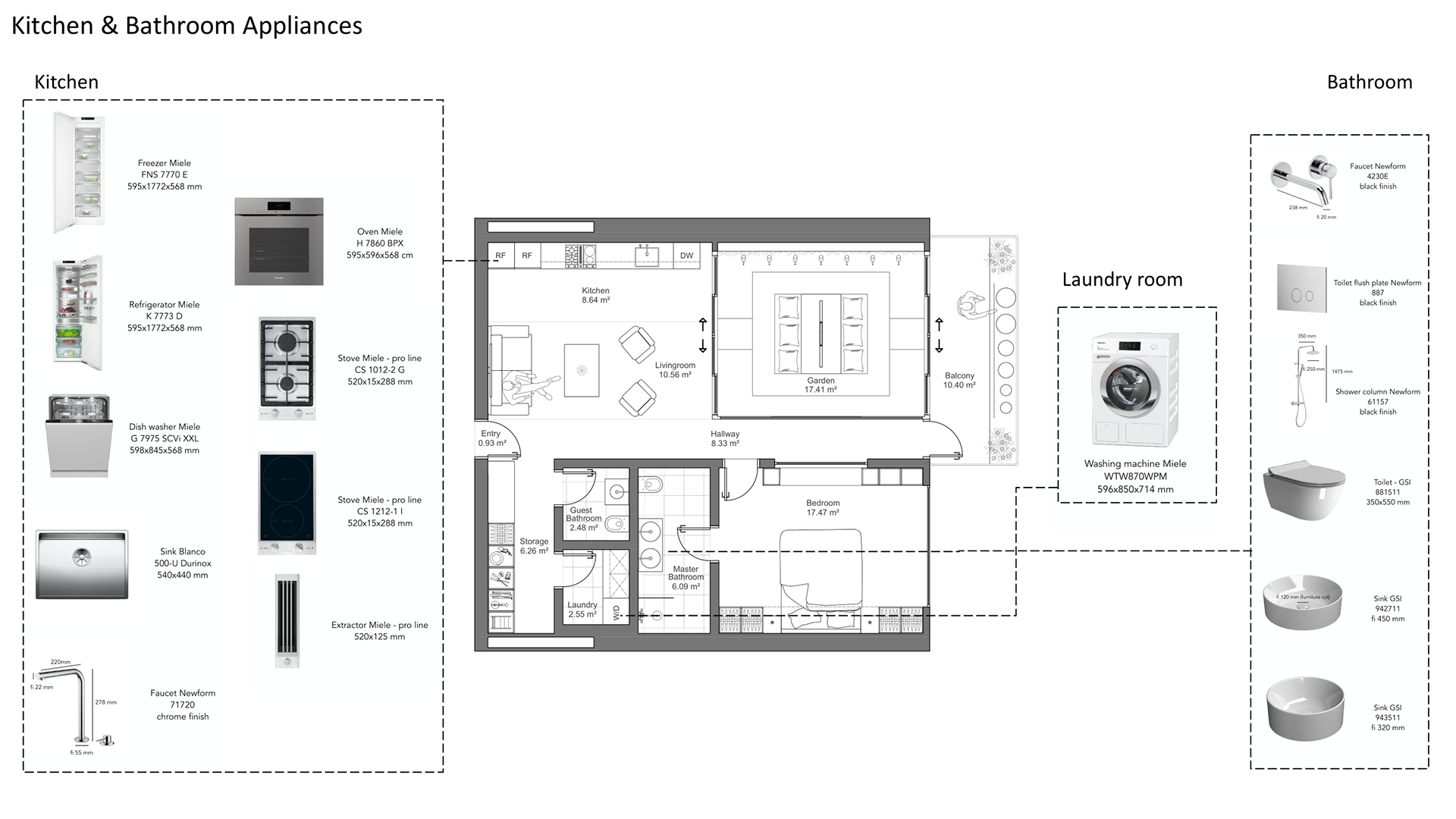
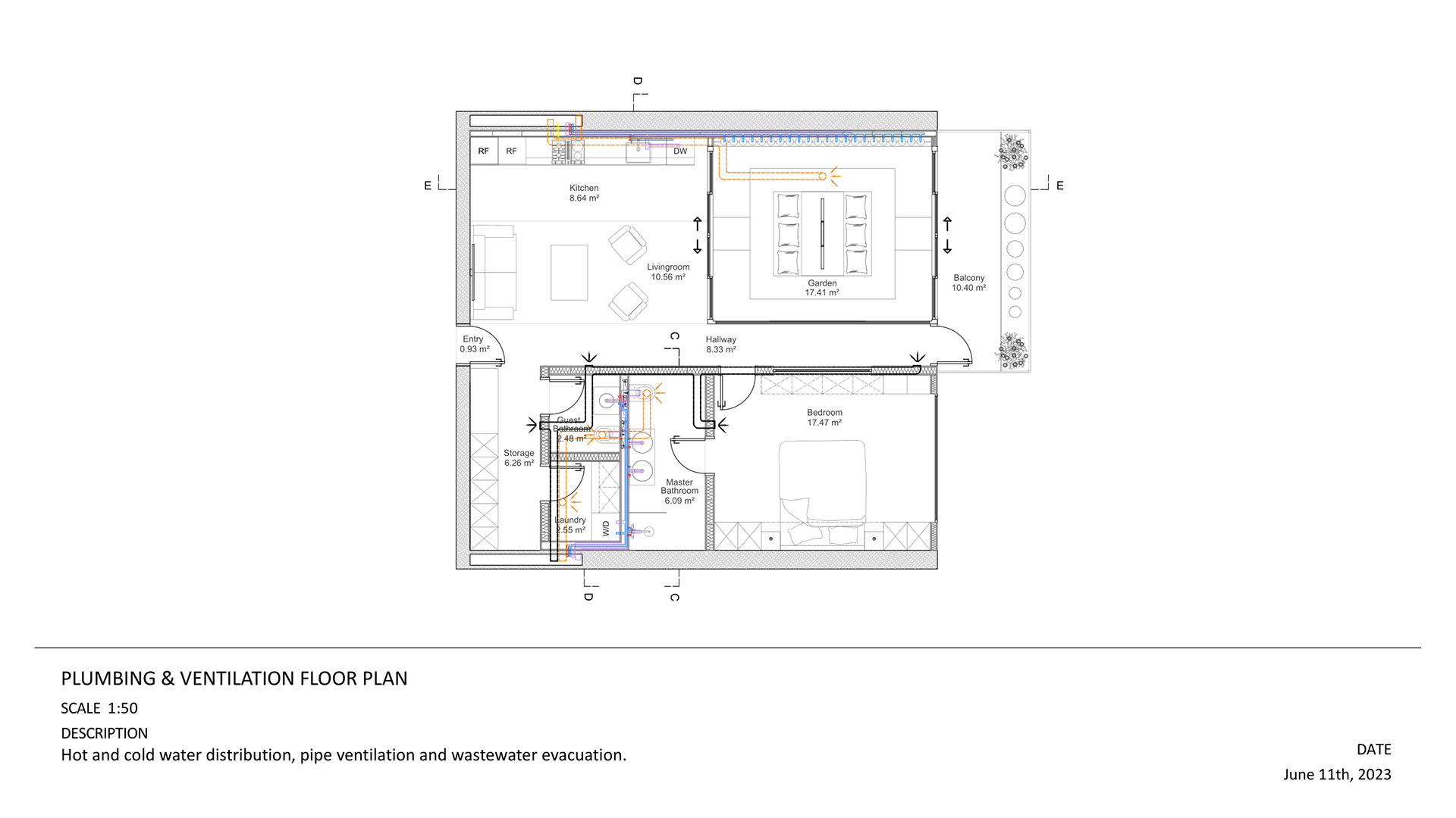
The project also integrates all building services, including plumbing, ventilation, hot and cold water distribution, and wastewater systems throughout the kitchen, bathrooms, laundry, and garden.